Livelli di umidità interna sempre troppo alti, un passato di muffe negli angoli e in altre zone fredde, ambiente interno sempre interessato da odore di umido e freddo; un cliente dello studio, ma come ce ne sono tanti altri, basta leggere i commenti sotto gli articoli, mi incarica di aiutarlo a risolvere definitivamente il problema: vuole una casa asciutta e non più a rischio muffa.
Il budget per l’intervento è inesistente (già è stato speso molto l’anno scorso per ritinteggiare tutti gli interni inseguendo l’idea di bonificare tutte le stanze dalle muffe che continuavano a ripresentarsi), quindi
si deve fare solo il necessario.
Ma qual’è questo necessario se non affrontare il toro per le corna? Il ricambio d’aria insufficiente e le zone fredde che sono i ponti termici strutturali e geometrici dell’edificio continueranno a presentare il conto: la condensa superficiale interna.
Non c’è il capitale necessario per un intervento di isolamento interno e per ripetere un’altra volta i lavori di finitura interna?
Si deve almeno pensare al ricambio d’aria,
e senza un impianto VMC con recupero di calore sarà veramente difficile dare una svolta al problema delle muffe. Se non si pensa alla salute degli adulti, si pensi almeno a quella dei più piccoli che stanno crescendo il loro apparato respiratorio. No, non vendo macchine per ventilazione controllata, ma le devo consigliare: sono la soluzione.
E’ chiaro che una VMC può risolvere il problema del ricambio d’aria, dell’umidità interna elevata e del rischio muffa. Ma cosa rispondere al committente che è tanto convinto della decisione quanto spaventato dai lavori in casa.
Inutile minimizzare: avere gente per casa che ti vuole demolire la casa e far polvere e calcinacci e chi sa che altri danni… spaventa! Ma le forometrie sono necessarie: la VMC deve comunicare con l’esterno e l’installazione prevede come minimo un’apertura nel muro perimetrale per la macchina + altri eventuali fori interni che sono indispensabili per far comunicar la VMC con ambienti più lontani.
Tutto sarebbe stato più semplice al tempo del cantiere o prima di abitarci, lo so.
Guardate cosa sono riuscito a combinare in casa mia qualche anno fa, per riuscire con 1 sola VMC ad offrire un po’ di ricambio aria a 2 stanze e a 1 bagno cieco:
ho dovuto aprire una finestrina nel muro perimetrale e poi far passare i corrugati da 75mm di diametro dove serviva. Nulla di impossibile, ma lavorare in una casa finita non offre la stessa libertà che offre un cantiere.
Nei mesi scorsi ho parlato di VMC intelligente, e molti lettori vorranno buttare un’occhiata ai lavori durante la giornata d’installazione di una VMC bluMartin. Buona visione!
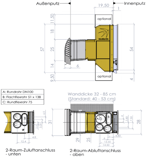
cominciamo con qualche misura da conoscere:
proteggere da danni e polvere il contenuto degli ambienti prima di iniziare a riportare sul muro le forometrie da realizzare è fondamentale:
demolire con precisione e cautela non significa perdere tempo, ma eseguire un ottimo lavoro:
prevedere le brevi canalizzazioni verso altri ambienti fa parte del progetto:
dalla demolizione interna, per evitare danni, non si può passare fino alla facciata esterna:
meglio proteggere gli occhi in alcune fasi:
chi lavora bene e con cura non è malvisto dagli altri condomini:
il lavoro preparatorio comincia a prendere forma e dare un senso, la sede della VMC va al suo posto:
per sfruttare una macchina VMC servendo altri locali si devono prevedere dei carotaggi attraverso alcuni divisori interni:
notare la tipologia di costruzione dell’edificio che prevedeva un sottile isolamento termico tra blocco di tamponamento esterno e rifodera in laterizio forato interna (naturalmente questa soluzione costruttiva porta con sè il problema della ripetuta interruzione dell’isolante ogni volta che si arriva ad un elemento strutturale, qui si vede il solaio interpiano):
come sapete, il ricambio d’aria degli altri locali necessita o di canali di ripresa o del modulo di trasferimento aria freeAir plus:
e finalmente arriva il momento di installare la bluMartin freeAir 100:
anche all’esterno è il momento di concludere e mettere via la scala:
per agevolare il passaggio di aria tra gli ambienti anche con porte chiuse è bene prevedere qualche millimetro libero a pavimento con il vecchio trucco della rondella, se possibile:
a così:
il canale di ripresa del bagno può essere inscatolato ad evidenziare un elemento architettonico strutturale finto:
il modulo di trasferimento aria freeAir plus non disturba: 
come concludere? il lavoro va fatto, e le soddisfazioni poi si raccolgono da sole!
lettura senza banner pubblicitari grazie alla generosità dei lettori – dona anche Tu 😉 sostieni l’informazione attraverso espertocasaclima.com!
Visita il profilo di federico su Pinterest.
copywriter, content creator & web editor – Federico Sampaoli consulente tecnico per l’isolamento termico dell’involucro edilizio
“Qui sotto puoi lasciare un commento” – non devi registrarti e il tuo indirizzo email non sarà mai pubblicato, approfittane! riceverai presto una risposta!
oppure sostieni l’informazione libera e imparziale di espertocasaclima con un un Buono Regalo Amazon digitale (via e-mail o SMS)

















































































Lascia un commento